Voll vermietete Kapitalanlage in zentraler Lage von Bad Kreuznach




Objektart
Haus
Objekttyp
Mehrfamilienhaus
Vermarktungsart
Kauf
PLZ
55543
Ort
Bad Kreuznach
ImmoNr
25-0002
Wohnfläche
ca. 745 m²
Grundstücksgröße
ca. 838 m²
Nutzfläche
ca. 71 m²
Anzahl Zimmer
30,5
Anzahl Badezimmer
12
Kaufpreis
1.270.000,00 €
Außen-Provision
Käuferprovision beträgt 5,95 % (inkl. MwSt.) des beurkundeten Kaufpreises
Beschreibung
Zum Verkauf stehen zwei, durch einen Durchgang verbundene, Mehrfamilienhäuser in zentraler Lage von Bad Kreuznach. Die Immobilie präsentiert sich als voll vermietetes Ensemble mit unterschiedlich geschnittenen Wohneinheiten – ideal für Kapitalanleger auf der Suche nach einer stabilen und zukunftssicheren Investition.Die Liegenschaft bietet eine attraktive Mischung unterschiedlicher Wohneinheiten. Vom gemeinschaftlichen Wohnen in WGs, oder Single-Apartments bis hin zu großzügigen 4-Zimmer-Wohnungen ist für verschiedenste Mieterbedürfnisse gesorgt.
Im Laufe der Zeit wurde zwar immer Geld investiert, allerdings gibt es gerade bei dem Thema Optik und Türen handlungsbedarf.
Ein großzügiger Balkon im 1. Obergeschoss wurde nachträglich errichtet, als im Erdgeschoss ein Restaurant zu Wohnraum umgewandelt wurde. Neben ausreichend Lagerfläche im Kellergeschoss befinden sich dort ebenfalls zwei separate Damen- , sowie Herren-WCs des ehemaligen Restaurants, welche nach Sanierung eventuell wieder in Benutzung gebracht werden können. Da der Keller recht feucht ist, wird dieser von den Mietern nicht genutzt. Das Dach des hinteren Wohnhauses wurde in den letzten Jahren erneuert und stellt somit einen bereits abgeschlossenen, größeren Instandhaltungspunkt dar. Die Heizungsanlage hingegen befindet sich altersbedingt perspektivisch vor einer Erneuerung.
Die auf zwei Wohnhäuser aufgeteilten 12 Wohneinheiten sind komplett vermietet. Dieses Angebot vereint somit solide Mieteinnahmen mit weiterem Entwicklungspotenzial und spricht dank ihrer flexiblen Wohnkonzepte, aber auch der zentrumsnahen Lage eine breite Mieterschaft an. Die beiden Wohnhäuser waren damals durch einen Durchgang im 1.OG verbunden. Aktuell ist dieser abgetrennt und dient in beiden Wohnhäusern entweder als Erweiterung der Küche im hinteren Wohnhaus oder aber als Abstellraum der Wohnung in vorderen Gebäude. Die Garage kann ebenfalls vermietet oder wie bisher von dem Eigentümer der Immobilie selbst genutzt werden. Stellplätze befinden sich auf dem Grundstück.
Überzeugen Sie sich gerne selbst und vereinbaren einen Besichtigungstermin.
Wir freuen uns auf Sie.
Lage
Die Kurstadt Bad Kreuznach mit ihren rund 50.000 Einwohnern, verteilt auf fünf Stadtteile, bietet eine ideale Kombination aus hoher Lebensqualität und attraktivem wirtschaftlichem Umfeld. Wahrzeichen wie die historischen Brückenhäuser, die malerische Altstadt sowie ein vielfältiges Freizeitangebot machen die Stadt zu einem anziehenden Standort – sowohl für Kunden als auch für Fachkräfte.Ein umfassendes Bildungsangebot von der Kindertagesstätte bis zum Gymnasium, eine hervorragende medizinische Versorgung mit zwei Krankenhäusern und mehreren Reha-Einrichtungen sowie eine lebendige Innenstadtstruktur schaffen optimale Bedingungen für Familien und Unternehmen. Auch verkehrstechnisch ist Bad Kreuznach bestens angebunden: Die B41 führt direkt durch das Stadtgebiet, die A61 ist nur etwa 7 Kilometer entfernt. Die Landeshauptstädte Mainz und Wiesbaden sind in rund 25 bis 30 Minuten erreichbar, der Flughafen Frankfurt liegt nur etwa 45 Minuten entfernt. Zusätzlich gibt es regelmäßige Bahnverbindungen in Richtung Bingen, Mainz und Kaiserslautern.
Energieausweis
Baujahr
1968
Energieausweis
Verbrauchsausweis
Energieausweis gültig bis
18.07.2035
Energieeffizienzklasse
H
wesentlicher Energieträger
Gas
Endenergieverbrauch
330 kWh/(m²a)
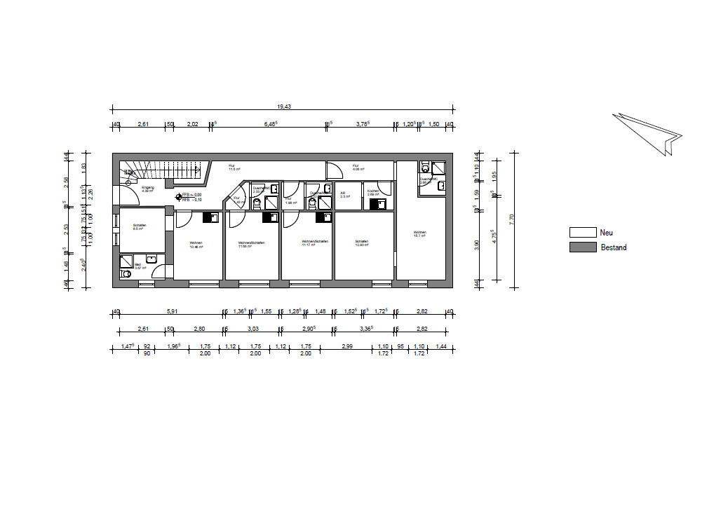
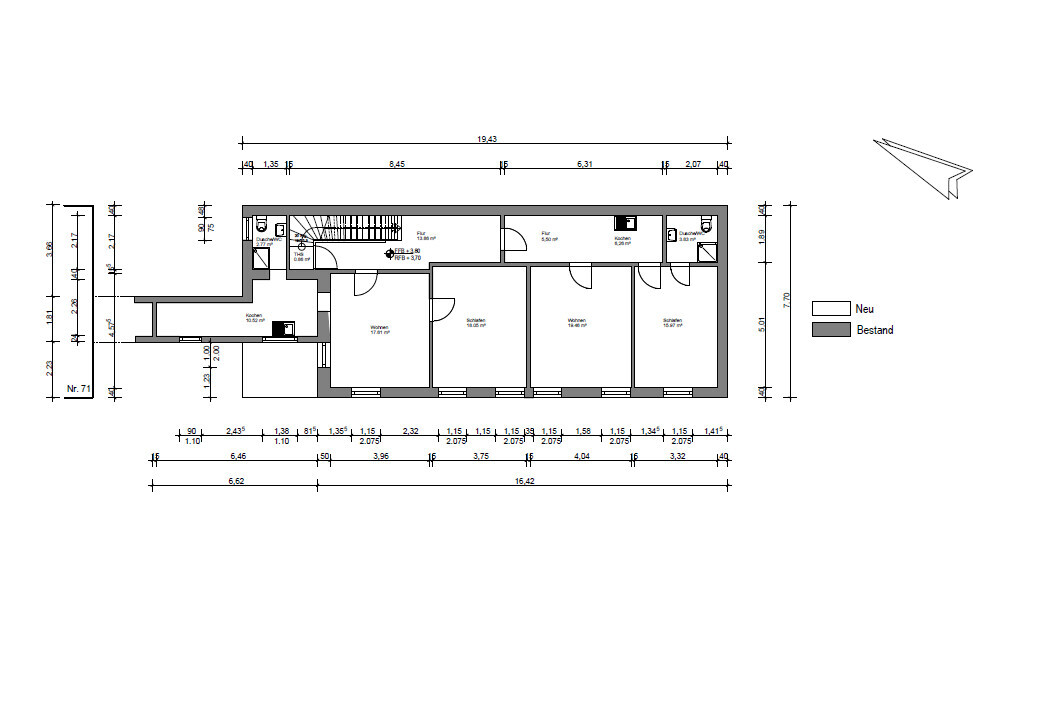
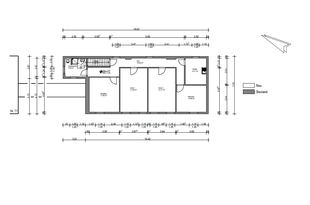
Ausstattung
- zwei mit einem Durchgang verbundene Mehrfamilienhäuser auf einem Grundstück- insgesamt 12 voll vermieteten Wohneinheiten
- unterschiedliche Wohneinheiten: WGs, Singleapartments, Drei- und Vierzimmerwohnungen
- Stellplätze vor dem Haus
- 1 vermietbare Garage auf dem Grundstück, sowie weitere Stellplätze
Vorderhaus:
- 2010/11 Umbau - Umwandlung des ehemaligen Restaurants zu einer abgeschlossenen WE
- 2012 Wohnung im 1.OG erneuert, großzügiger Balkon mit schönem Blick ins Grüne
- große Terrasse für die gegenüberliegende Wohnung im 1.OG
- teilweise neue Bodenbeläge
- Elektrik wurde im Erd- und Obergeschoss teilweise erneuert, inkl. neuer Stromzähler
- WGs im Erdgeschoss, sowie Drei- bis Vierzimmerwohnungen in den oberen Etagen
- 1996 eingesetzte Fenster mit Doppelverglasung, ein in 2023 erneuertes Fenster
- ca. 12cm Außenwand-Dämmung zur linken Seite beider Häuser
- gemeinsame Gaszentralheizung (Baujahr 1991)
-> insgesamt 5 Wohneinheiten mit ca. 404m² Wohnfläche
Hinterhaus:
- 2011/12 Dach erneuert und neu eingedeckt
- ca. 12cm Außenwand-Dämmung zur linken Seite beider Häuser
- Singleapartments im Erdgeschoss, drei weitere Wohneinheiten im 1. und 2 OG
- noch zwei Fenster mit Einfachverglasung vorhanden, welche im Dachgeschoss ausgetauscht werden
-> insgesamt 7 Wohneinheiten mit ca. 341m² Wohnfläche
Die Jahresmiete beträgt insgesamt 74.520€ für beide Wohngebäude.
Der Energieausweis befindet sich aktuell in Bearbeitung und liegt zur Besichtigung der Immobilie vor.
Sonstige Angaben
Geldwäscheprävention gemäß Geldwäschegesetz (GwG)Als Immobilienmakler ist die Firma Göthling Immobilien nach § 2 Abs. 1 Nr. 14 sowie § 11 Abs. 1 und 2 des Geldwäschegesetzes (GwG) verpflichtet, die Identität ihrer Vertragspartner zu überprüfen, sobald eine Geschäftsbeziehung begründet wird oder ein konkretes Kaufinteresse vorliegt.
Was bedeutet das für Sie als Interessent oder Auftraggeber?
Natürliche Personen: Wir sind gesetzlich verpflichtet, Ihre Identität durch Vorlage eines gültigen Ausweisdokuments (z. B. Personalausweis oder Reisepass) zu erfassen und zu dokumentieren.
Juristische Personen: In diesem Fall benötigen wir einen aktuellen Handelsregisterauszug sowie Angaben zu den wirtschaftlich Berechtigten im Sinne des § 3 GwG.
Diese Maßnahmen dienen der gesetzlich vorgeschriebenen Prävention von Geldwäsche und Terrorismusfinanzierung. Die erhobenen Daten werden gemäß § 11 Abs. 4 GwG für einen Zeitraum von fünf Jahren aufbewahrt. Bitte beachten Sie, dass Sie nach § 11 Abs. 6 GwG verpflichtet sind, an der Identitätsfeststellung aktiv mitzuwirken.
Haftungsausschluss:
Alle von uns zur Verfügung gestellten Objektunterlagen – wie Grundrisse, Flächenangaben oder sonstige Informationen – basieren auf Angaben der jeweiligen Eigentümer oder Vermieter.
Für die Richtigkeit, Vollständigkeit oder Aktualität wird daher, trotz sorgfältiger Prüfung, keine Haftung übernommen.
Interessenten wird empfohlen, alle Angaben eigenverantwortlich auf Ihre Richtigkeit hin zu überprüfen. Unsere Angebote sind freibleibend. Irrtümer, Zwischenverkauf, Zwischenvermietung oder anderweitige Verwertung bleiben vorbehalten.

7 Jahre Erfahrung
Vertrauen Sie auf unsere regionale Expertise und profitieren Sie von unserem Netzwerk.

Wir freuen uns Sie persönlich kennenzulernen
Ihr zuverlässiger Partner rund um Ihre Immobilie für die Regionen: Bad Kreuznach, Alzey, oberes Mittelrheintal bis Wiesbaden.
Kostenfreie Beratung
Pages: 1
